電液動扇形閘門
用途

本系列扇形閘門廣泛應用于建材、冶金、礦山、電力、化工、輕工、糧食等行業,是各類落料系統的卸料控制裝置。
結構特點
本閘門結構簡單,采用優質鋼板焊接而成,采用電液推桿驅動,運行平穩,故障率低,可以快速切斷料流。
性能參數
| 適用介質 |
適用溫度 |
介質流速 |
| 晶料、固體顆粒物料、粉狀物料 |
≤300℃ |
≤28m/s |
| 電源電壓 |
調節特性 |
電液推桿型號 |
| 380V50HZ |
二位開關式 |
DYT系列 |
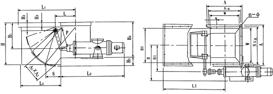
1.DSZ-□A(B)-Ⅰ型電液動扇形閘門
電液動扇形閘門(A、B型)

2.DSZ-□A(B)-Ⅱ型電液動扇形閘門
結構特點
本系列電液動動扇形閘門直接將電液推桿固定在閘門本體上,避免了用戶在現場定位的煩惱,安裝簡便。
3.TDSZ-□電液動扇形閘門
用途:
本系列電液動扇形閘門是根據建材行業作業時的特殊需要,用作水泥熟料庫除塵設備的理想卸料裝置。
特點:
本閘門在出料口設置了防塵罩,避免了灰塵飛揚;采用電液推桿作動力源,取代氣缸傳動,節約了工程投資成本;閥體采用階臺結構,減
少了料流沖擊;閥體關鍵部位鋪設柵欄結構的耐磨襯板,減少了襯板直接磨損。
性能參數:
|
適用介質 |
干燥粉塵 |
工作溫度 |
≤150℃ |
卸灰量 |
6-90m3/h |
